Description
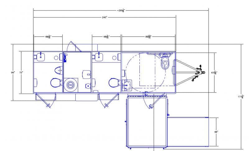
ADA+2 restroom trailer, 20′ x 6′, with aluminum polar white exterior and gray interior walls. Layout includes one ADA compliant room with grinder toilet, ADA sink, and handrails, one men’s room with toilet, urinal, and cabinet base with sink, and one women’s room with toilet and cabinet base with sink. Features LED interior and exterior lighting, roof mount air conditioning unit, electric hot water heater, 105 gallon fresh water tank with city fill connection, 375 gallon waste tank with sight glass, and durable construction suited for event and commercial use.
















Reviews
There are no reviews yet.